
Fluke480U锐智系列热像仪/Fluke 885/1060 大师系列热像仪问世,搭载全新传感器和光学系统,让成像效果突破参数限制;UltraFocus对焦技术使热像仪在复杂环境中也能快速、自由、精准对焦;支持最多10倍数码变焦,可检查远距离目标;搭配SmartView IR 电脑软件,处理热像视频,分析数据,导出报告,闭环工作流程。
Fluke【电子研发型】热像仪适用多场景:研发实验、生产品控、设备维护、电气巡检等,现在福禄克推出Ti480U热像仪免费试用计划,助力电子工程师:

检测目标:电路中元器件发热、电路板热分布情况,分析电路设计不足或隐患
检测难点:温差小,电路板上的部分元器件可能温度差异非常微小,尤其是在低功耗和高性能的电路中。导致普通测温工具难以发现微小温差,无法精准的识别潜在的过热区域
解决方案:Ti480U/TiX885 640高像素热像仪,可以适配不同的微距镜头,以捕捉微小目标的同时兼顾到整块PCB板的拍摄
方案价值:640高清像素与0.025摄氏度的高热灵敏度,可以清晰精准的呈现电路板的温度分布细节,帮助快速定位过热区域

检测目标:封装前的LED芯片,并加载不同的测试电流
检测难点:目标小,芯片的尺寸只有1.5mm,还需要能看到表面的温度差异,并能进行具体温度数据的趋势分析
解决方案:TiX885640高像素热像仪+微距镜头+二维可调精密位移云台+免费的分析软件
方案价值:微米级别高清呈现小目标温度分布,可在线固定检测,并使用软件实时精准分析数据变化

检测目标:最小尺寸在50微米以内的芯片晶格
检测难点:目标小,微米级别的目标,使用普通热像仪难以清晰体现温度差异
解决方案:TiX885 640高清像素或TiX1060 1024超清像素热像仪+微距镜头+二维可调精密位移云台,可以实现小至6.8微米的目标测试
方案价值:小至6.8微米级别高清呈现小目标温度分布,可在线固定检测并精准分析数据变化

检测目标:平板电脑及手机液晶屏,检测液晶屏上的坏点,坏点由于内阻较高呈现微量的热点
检测难点:①目标小,液晶屏像素点最小仅为40微米;②温差小,问题点的最小温差仅为0.05℃或更小
解决方案:TiX885 640高清像素热像仪搭配灵活的微距镜头
方案价值:微米级别高清呈现小目标温度分布,帮助无遗漏的筛查产品坏点,提升质量

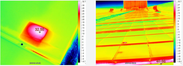
检测目标:光伏板热斑检测
检测难点:目标较大但同时需要看到局部的具体温差细节
解决方案:Ti480U/TiX885 640高清像素热像仪搭配广角镜头
方案价值:更高像素可以清晰体现温度差异细节,同时可灵活搭配广角镜头,一次高效检测更大的视野范围,提高效率

